0176 19999905
Zimmer
quadratmeter Wohnfläche
Baujahr
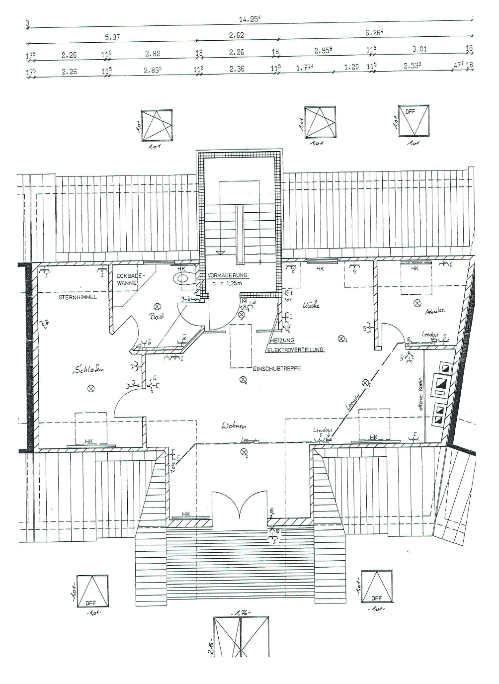
Viel Tageslicht sowie eine offene und durchdachte Raumaufteilung zeichnen diese 3-Zimmer-Wohnung aus. Das Herzstück der Immobilie bildet der rund 40 m² große Wohn- und Essbereich, der durch den hochwertigen Kaminofen eine besonders gemütliche und natürliche Wohnatmosphäre ausstrahlt.
Die integrierte Einbauküche ist in praktischer U-Form angeordnet und bietet viel Stauraum sowie kurze Wege beim Kochen. Durch die offene Gestaltung haben Sie beim Zubereiten der Mahlzeiten stets den Blick über den Wohnraum und in die umliegende Natur.
Vom Wohnbereich aus gelangen Sie direkt auf die etwa 7,5 m² große, überdachte Loggia, die dank ihrer geschützten Lage zu entspannten Stunden bei nahezu jedem Wetter einlädt.
Die beiden weiteren Zimmer mit ca. 15 m² und 9 m² bieten Ihnen vielseitige Nutzungsmöglichkeiten als Schlaf-, Kinder- oder Arbeitszimmer. Beide Räume verfügen über einen warmen, pflegeleichten Laminatboden in Holzoptik, der eine wohnliche Atmosphäre schafft und einen angenehmen Kontrast zu den hell gefliesten Bereichen der übrigen Wohnung bildet.
Das Badezimmer ist wandhoch hell gefliest und mit einer komfortablen Eckbadewanne inklusive Duschvorrichtung ausgestattet.
Zusätzlichen Stauraum finden Sie im zur Wohnung gehörenden Spitzboden. Ebenfalls steht ein Fahrradraum sowie Waschkeller zur Verfügung.
Letzte Modernisierungsmaßnahmen: Die Dachflächenfenster der Wohnung wurden 2009 saniert, der Kamin wurde 2025 modernisiert.
Die gesamte Einheit befindet sich in einem sehr gepflegten Zustand innerhalb einer weitläufigen, aus acht Gebäuden bestehenden Wohnanlage aus dem Jahr 1994 samt Tiefgarage.
Der Kaufpreis der Wohnung beläuft sich auf 215.000 Euro zzgl. Tiefgaragenstellplatz in Höhe von 14.000 Euro. Das monatliche Hausgeld beläuft sich derzeit auf 200 Euro. Die Nettokaltmiete des aktuellen Mietverhältnisses beträgt 550 Euro.
Für Kapitalanleger bietet diese Wohnung eine äußerst attraktive Perspektive. Derzeit ist die Einheit bis Ende Juli 2029 befristet vermietet, wodurch Sie als Erwerber von Anfang an eine zuverlässige Mietrendite erhalten. Gleichzeitig behalten Sie sich die Möglichkeit vor, die Wohnung zu einem späteren Zeitpunkt selbst zu nutzen – ideal für Kapitalanleger, die langfristig planen oder einen späteren Eigenbedarf nicht ausschließen. Die Kombination aus stabiler Vermietung, gepflegtem Zustand und beliebter Wohnlage macht dieses Objekt zu einer attraktiven Investition.
Bitte beachten Sie: Da die Wohnung derzeit bewohnt ist, finden Sie unter den Bildern ein paar Wohnbeispiele (Visualisierungen). Um sich selbst ein Bild von der Immobilie zu machen, laden wir Sie gerne zu einer Besichtigung ein.
Wohnfläche ca. 73 m²
Anzahl Zimmer 3
Anzahl Schlafzimmer 2
Anzahl Badezimmer 1
Anzahl Abstellraum 1 (Spitzboden)
Anzahl Balkon 1 (Loggia, überdacht)
Keller Fahrrad-/Waschraum vorhanden
Baujahr 1994
Kaufpreis 229.000 €
Provisionspflichtig Ja
Käuferprovision 3,57%
Provisionshinweis Bei notariell beurkundetem Kaufvertrag fällt eine Maklerprovision in Höhe von 3,57% inkl. MwSt. an.
Heizungstyp
Energieausweis
Energieeffizenz-klasse

Die Immobilie befindet sich in naturnaher Randlage des Marktes Pleinfeld im begehrten Fränkischen Seenland. Nur etwa 2 Kilometer vom Großen Brombachsee entfernt, bietet der Standort einen hohen Freizeitwert; das Waldfreibad sowie diverse Sportanlagen liegen in unmittelbarer Nähe. Pleinfeld zeichnet sich durch eine hervorragende Infrastruktur aus: Der Bahnhof ist in weniger als 10 Gehminuten erreichbar und bietet mit Regionalexpress-Verbindungen eine schnelle Anbindung an das ca. 40 km entfernte Nürnberg (Fahrzeit ca. 35 Minuten). Auch die Städte Weißenburg und Gunzenhausen sind durch die verkehrsgünstige Lage zeitnah erreichbar. Hier verbinden sich entspanntes Wohnen im Grünen und die Nähe zu wichtigen Wirtschaftszentren der Region ideal.
Wir freuen uns über Ihre Anfrage.
Bei Interesse stehen wir Ihnen gerne unter mm@xadu.de oder telefonisch unter der Telefonnummer
0176 19999905 zur Verfügung!